Boris Bouchet Architectes

Architecture et urbanisme 

72 AVENUE MARX DORMOY
63000 CLERMONT-FERRAND
04 73 29 06 25

120 AVENUE GAMBETTA
75020 PARIS
01 83 81 13 22

contact@milieux.fr

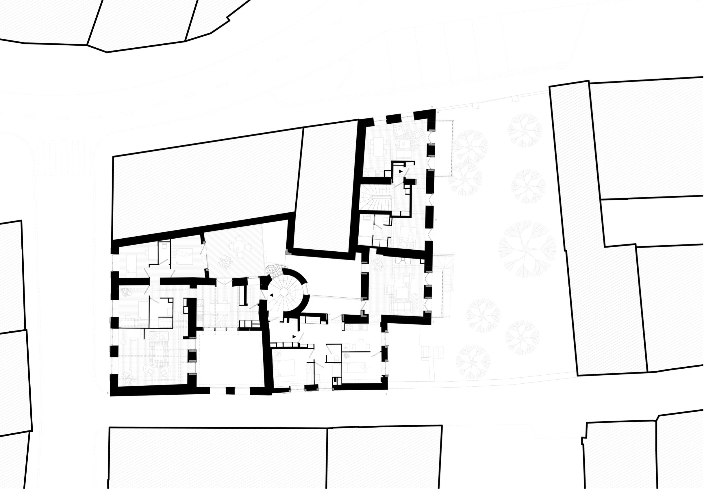
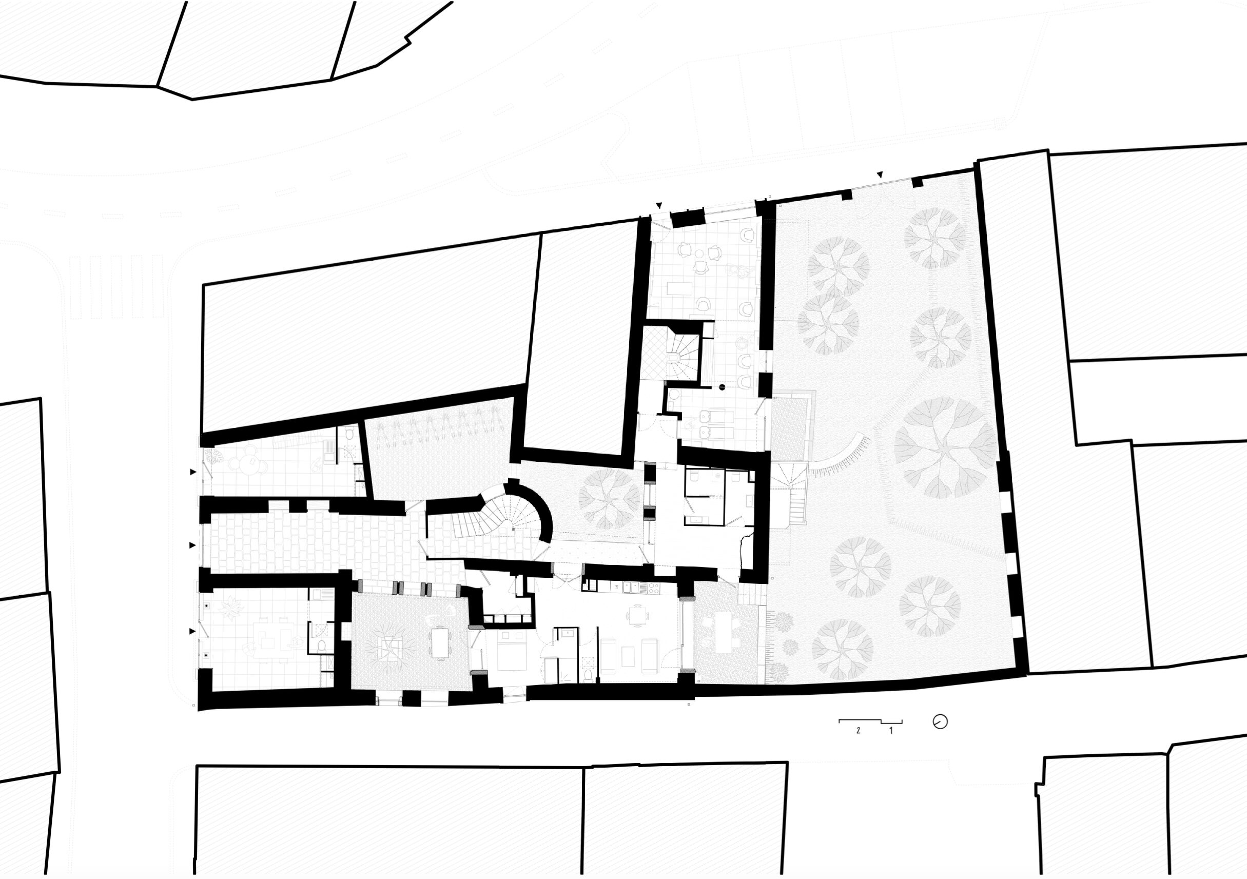
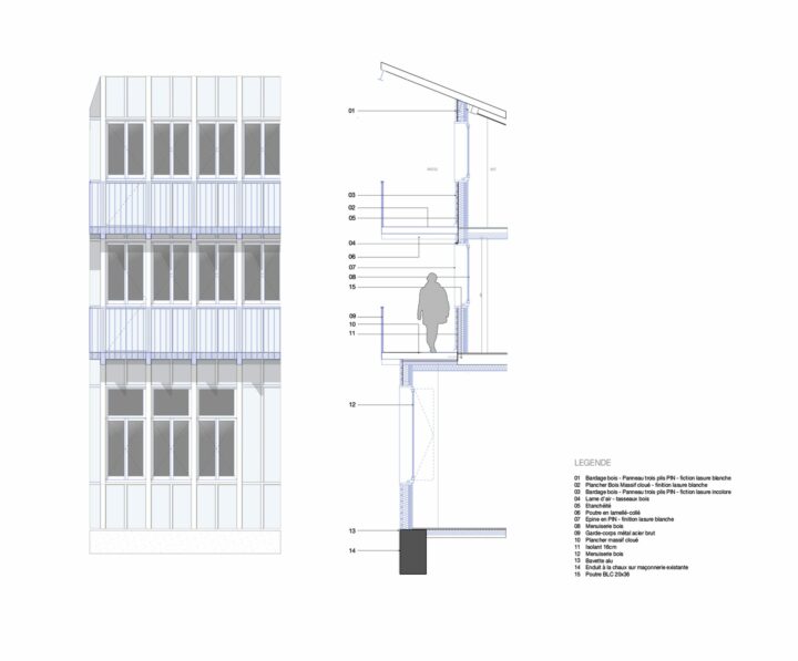
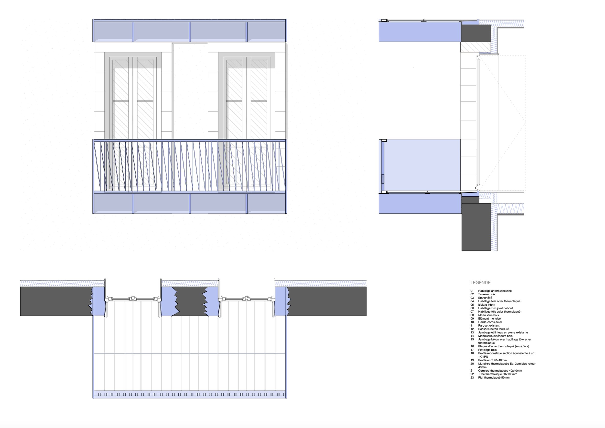
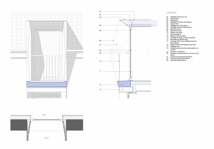
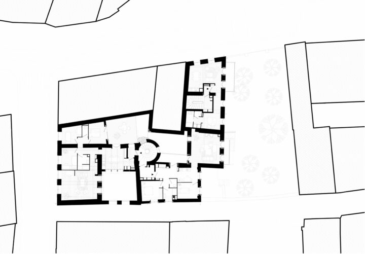
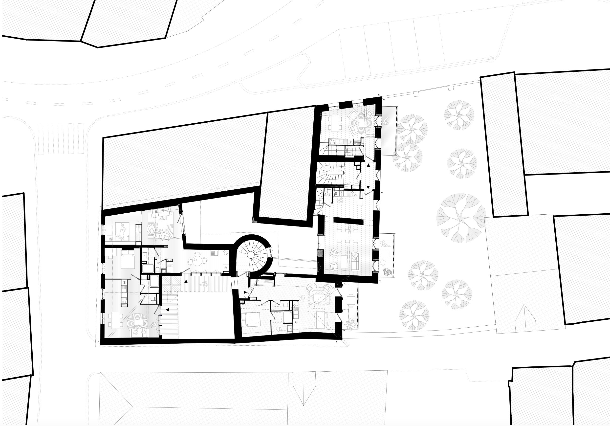
Transformation de l’îlot Gerbert – 14 logements locatifs sociaux à Aurillac